好物件!【新潟市 売マンション情報】中央区 古町通4番町

こんにちは~

 

『はまなす便り』です。 

 

 

厚い雲に覆われた新潟市内です。

今にも雨が降りそうな・・・

どんよりの曇り空です!!

 

 

急激に季節が進みました!!

10月もあっという間に後半!!

体調管理を万全に

 

短い秋を楽しみましょう!! 

  

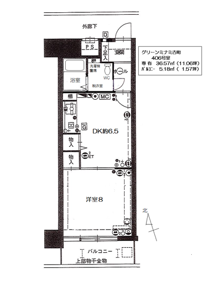
さて、今日は中央区の売マンション情報です!!

 

2025年6月【リフォーム完了!!】

 上古町商店街近くのマンションで、自分らしい毎日を!!

 

 

近隣生活利便施設が充実!!

 

2025年6月リフォーム完了!!

 

 あなたのご見学を心よりお待ちしております!!

 どうぞお気軽に、こちらからご相談、お問合せ下さい。